Planung
Planung Projekt 5/2024 – kleine Umgestaltung des Freisitzes
- Natursteinmauer, Holzterrasse, Betonpflaster
- versteckte Sitzecke mit Außenkamin
___________________________________________________________
Entwurfsplanung Neuanlage Hausgarten im Jahr 2023
- Muschelkalkquader und -findlinge als lockere Beetabgrenzung
- Bodendeckende Bepflanzung im oberen Bereich
- Mulchschicht aus Perlkies im Muldenbereich
- Trittplatten aus Muschelkalk
- Staudenblockbepflanzung
- Solitärgehölze im oberen Bereich
- Abgestufte Mulde bis – 30 cm
___________________________________________________________
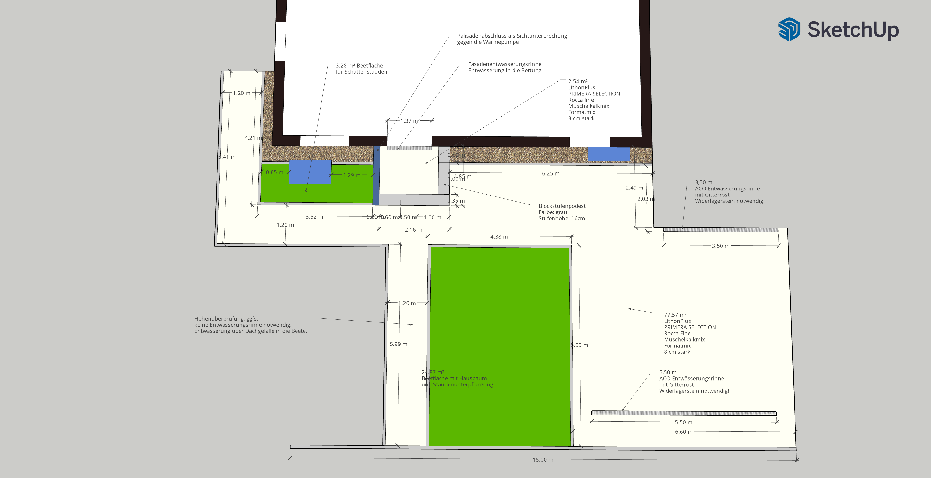
Entwurfsplanung Neuanlage Eingangsbereich, Abstellplatz, Garageneinfahrt im Jahr 2023
- Eingangsbereich und Abstellplatz mit Pflaster in Muschelkalkoptik
- Hauseinang über Blockstufenpodest
- Einfassung des Blockstufenpodest mit Palissaden
- Entwässerung der Abstellfläche und Wege
- Vorbereitung Beetflächen für Hausbaum- und Staudenpflanzung
___________________________________________________________
3D-Planung Treppenanlage im Jahr 2022
- Verbindung der auf Straßenhöhe gelegenen Terrasse mit dem am Hang liegenden Hausgarten
- Höhenunterschied zwischen Terrasse und Hausgarten 3 Meter
- Abfangen des Hanges mit Mauerscheiben mit bis zu einer Höhe von 2,55 m
___________________________________________________________
Entwurfsplanung Neuanlage Hausgarten im Jahr 2020
___________________________________________________________
Entwurfsplanung Neuanlage Hausgarten im Jahr 2020
- Neubau
- Organische Gartengestaltung vs. geradlinige Gartengestaltung
___________________________________________________________
Entwurfsplanung Umgestaltung Hausgarten im Jahr 2020
- Kleine Umgestaltung
- Fertigrasen
- Sitzplatz
- Lockere Sichtschutzbepflanzung
- Kleines Beet mit Trockenmauer unter dem Bestandsbaum
___________________________________________________________
Entwurfsplanung zu einem Projekt aus der Meisterschule
im Jahr 2019
___________________________________________________________
Entwurfsplanung zur Umgestaltung Hausgarten im Jahr 2014
___________________________________________________________



















